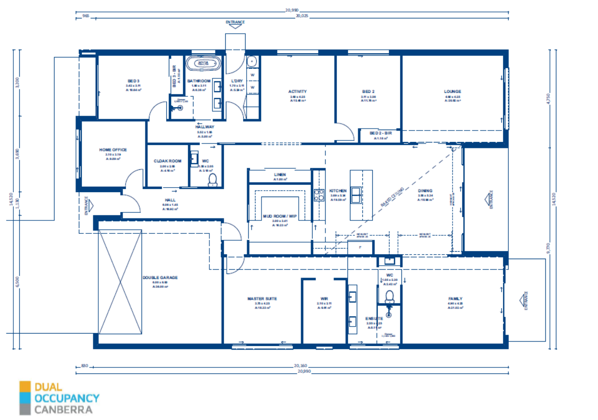
Design DO-1300 is a celebration of spacious, contemporary living, thoughtfully arranged to accommodate the diverse rhythms of family life. From the moment you arrive, the home’s striking, elevated roofline and clean, modern façade create an inviting sense of grandeur, offering a hint of the expansive interiors that lie beyond.
Stepping inside, a wide hallway connects to a series of cleverly zoned living spaces, each designed to foster togetherness or quiet retreat as needed. At the heart of the home, the open-plan kitchen, dining, and family areas flow effortlessly into one another, united by generous glazing that welcomes natural light. This central hub becomes the stage for daily gatherings, whether it’s preparing a meal around the spacious kitchen island or sharing stories by the warmth of the family room. For more intimate moments or formal entertaining, a separate lounge sits tucked away, offering a tranquil space to read, watch movies, or host guests without disturbing the activity in the main living zone. Adjacent to the lounge, an activity room extends a playful invitation—ideal for children’s games, crafts, or a casual workspace for hobbies.
In the bedroom wing, privacy and comfort are paramount. Two well-proportioned bedrooms share a stylish bathroom and enjoy easy access to the activity room, forming a perfect kids’ or guest retreat. Further down the corridor, the master suite stands as a personal sanctuary, complete with a spacious walk-in robe and a luxurious ensuite. Its position at the opposite end of the home ensures a peaceful haven, away from the bustle of family life.
Practicality underpins every element of Design DO-1300. A dedicated home office accommodates remote work or study, while a thoughtfully placed mud room, laundry, and cloakroom keep daily clutter at bay. The double garage, conveniently linked to the interior, streamlines comings and goings.
Outside, carefully positioned windows and sliding doors connect the living spaces to a sheltered alfresco area, perfect for year-round entertaining. Landscaped gardens and soft greenery wrap around the home, enhancing its calm, natural aesthetic.
Ultimately, Design DO-1300 weaves together the comforts of modern living with an effortless sense of style. It is a home that balances communal energy with private retreats, offering a welcoming environment that can adapt and grow with the people who live there.
Customised Planning Approvals Features for DO-1300