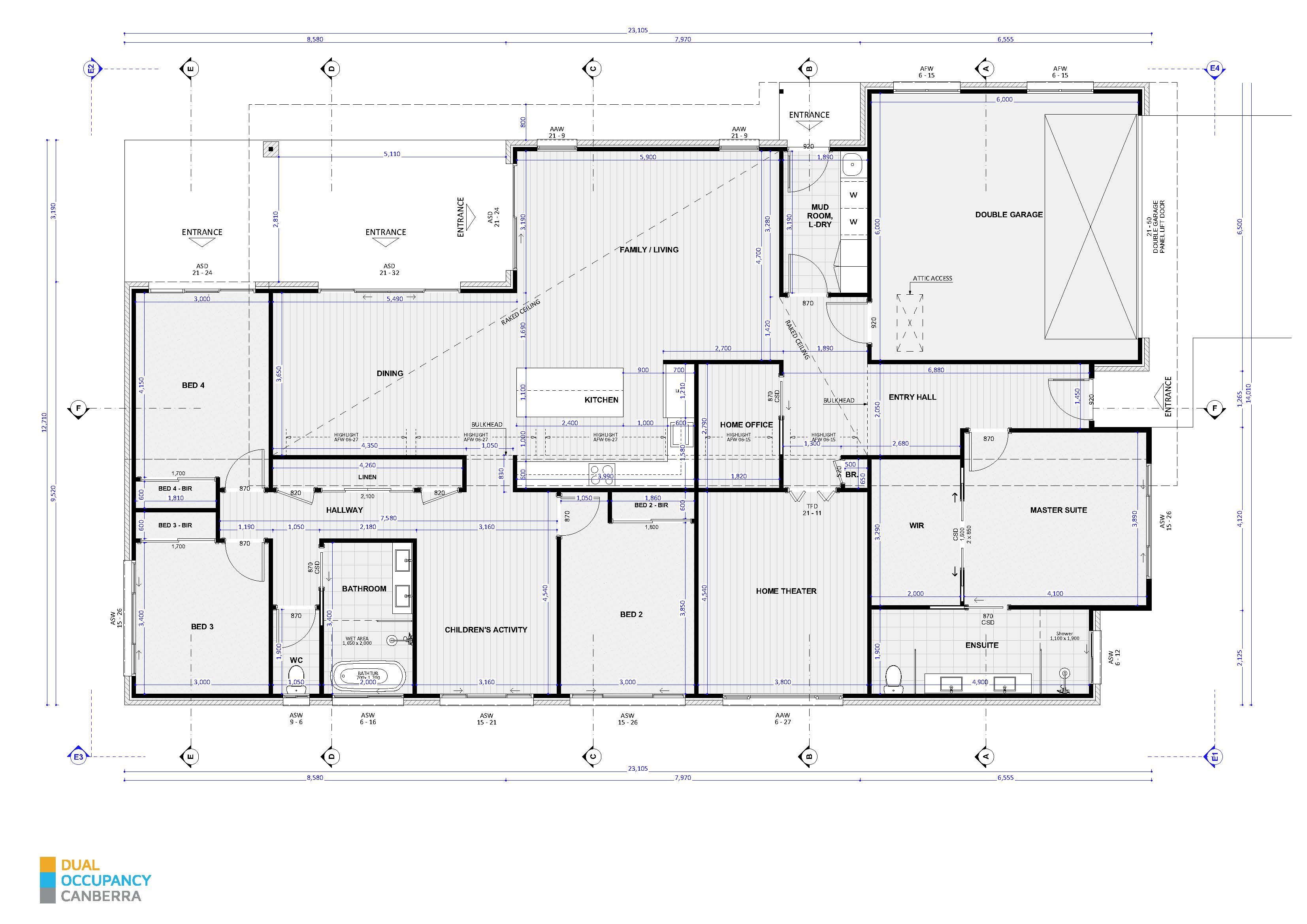
Design DO-1400 strikes a harmonious balance between contemporary style and everyday practicality, resulting in a home that effortlessly accommodates the evolving rhythms of family life. From the street, the façade combines sleek brickwork with warm timber accents, giving an immediate impression of both substance and welcome.
Inside, a generous open-plan living, dining, and kitchen area forms the vibrant heart of the design. Natural light pours in through large windows, highlighting the clean lines and modern finishes. A spacious kitchen island doubles as a social hub—perfect for casual breakfasts, evening homework sessions, or entertaining guests. Nearby, sliding doors connect this central gathering space to an alfresco zone, extending the living area outdoors for weekend barbecues or relaxed family evenings under the stars.
At the front of the home, the double garage provides both security and convenience, with direct internal access leading to a mudroom nook that keeps everyday clutter at bay. A dedicated home office is positioned to allow for focused work or study, neatly separated from the main activity zones.
Children and guests are treated to their own wing, complete with well-proportioned bedrooms, a shared bathroom, and a versatile activity space. This layout ensures younger family members can play or study close to their rooms, fostering independence while maintaining a sense of connection. For movie nights or quieter downtime, a home theater awaits—an intimate retreat that elevates entertainment into a cozy, private experience.
On the opposite side of the home, the master suite becomes a tranquil sanctuary. A spacious walk-in robe keeps the bedroom free from clutter, while the luxurious ensuite—complete with modern fixtures and ample natural light—offers a spa-like haven for rest and rejuvenation.
In Design DO-1400, every detail has been considered, from the flow of daily routines to the small comforts that make a house a home. The result is a family-friendly dwelling that pairs sleek, contemporary lines with thoughtful zoning, ensuring both communal connection and personal retreat for everyone under its roof.
Customised Planning Approvals Features for DO-1400