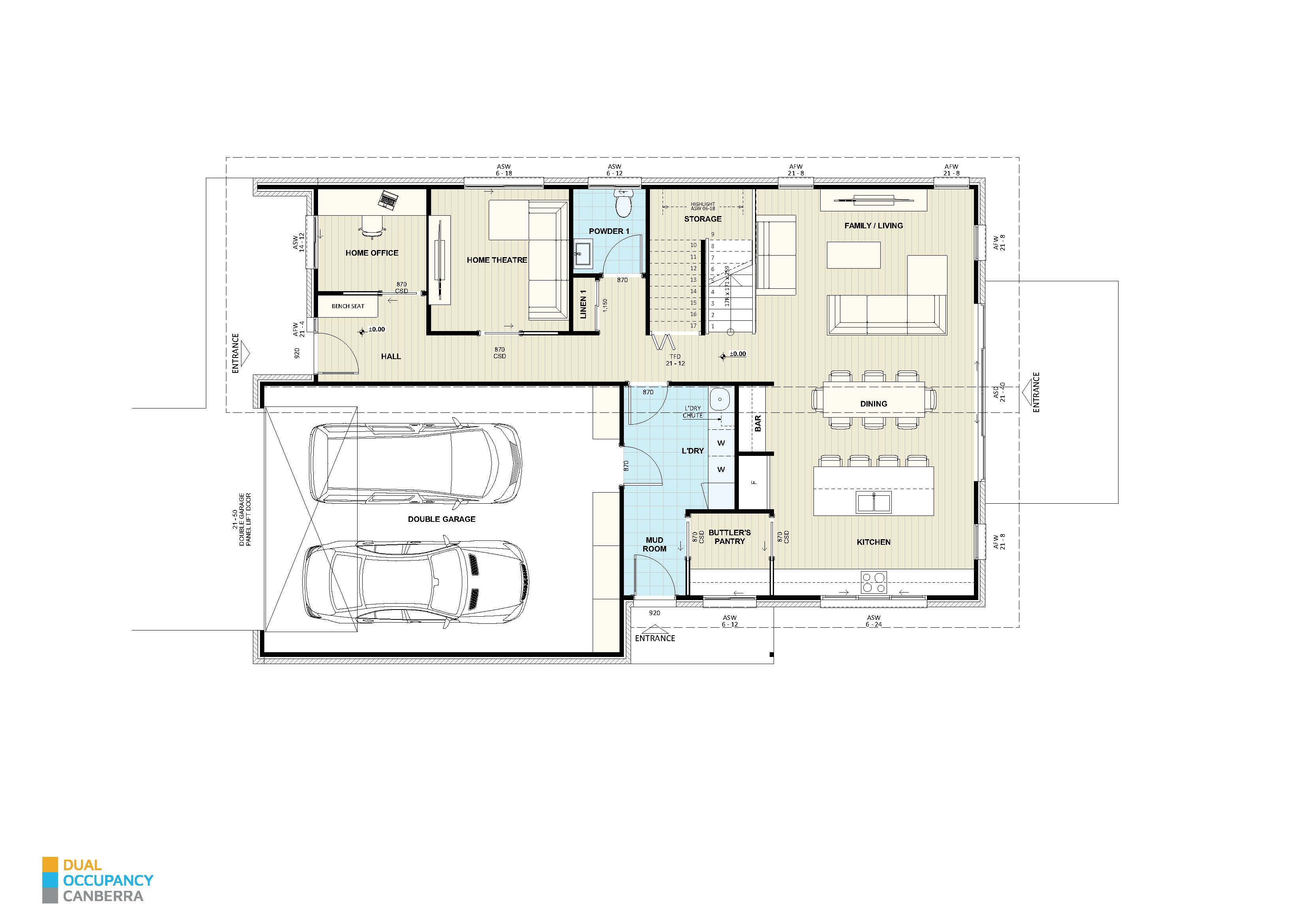
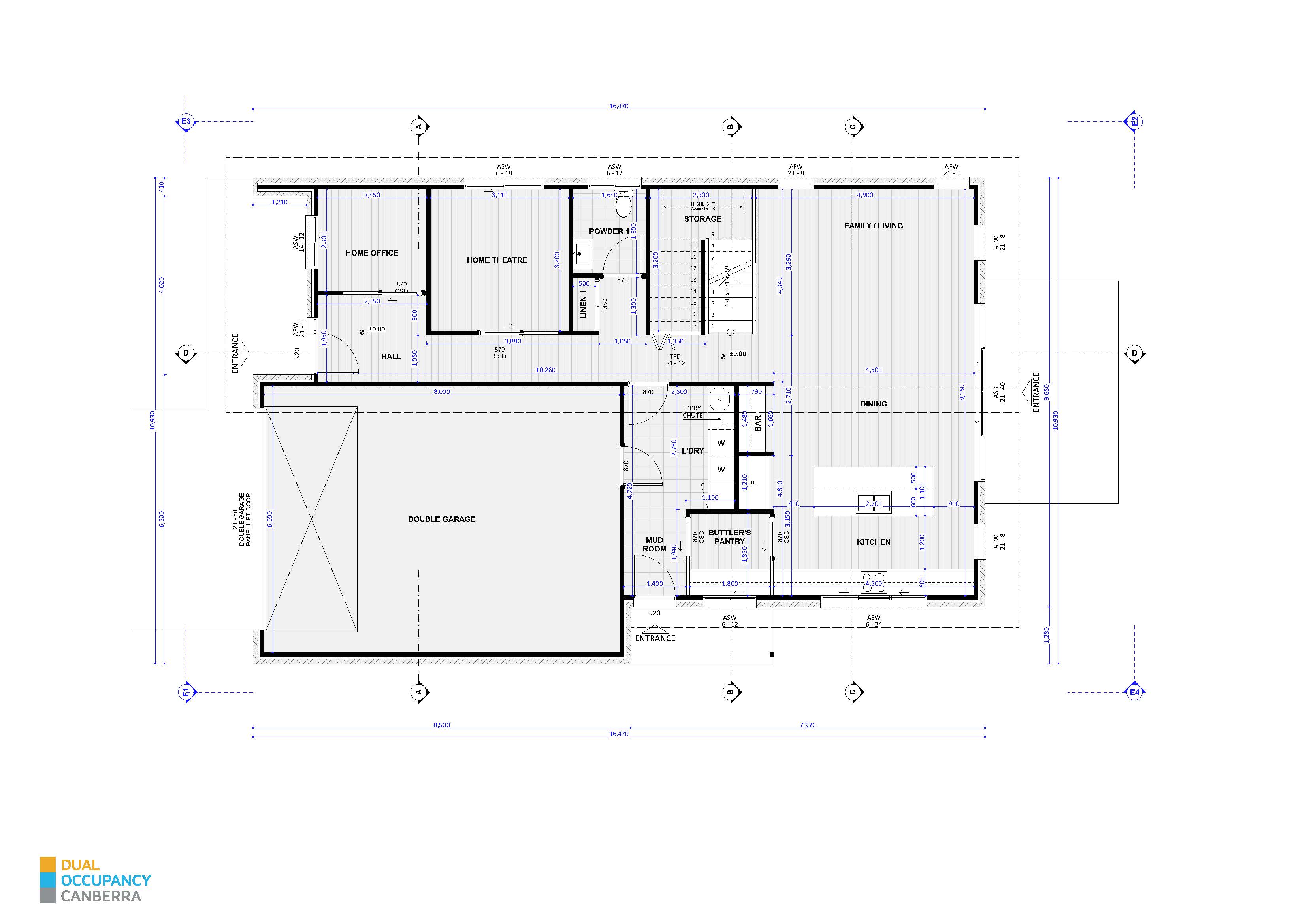
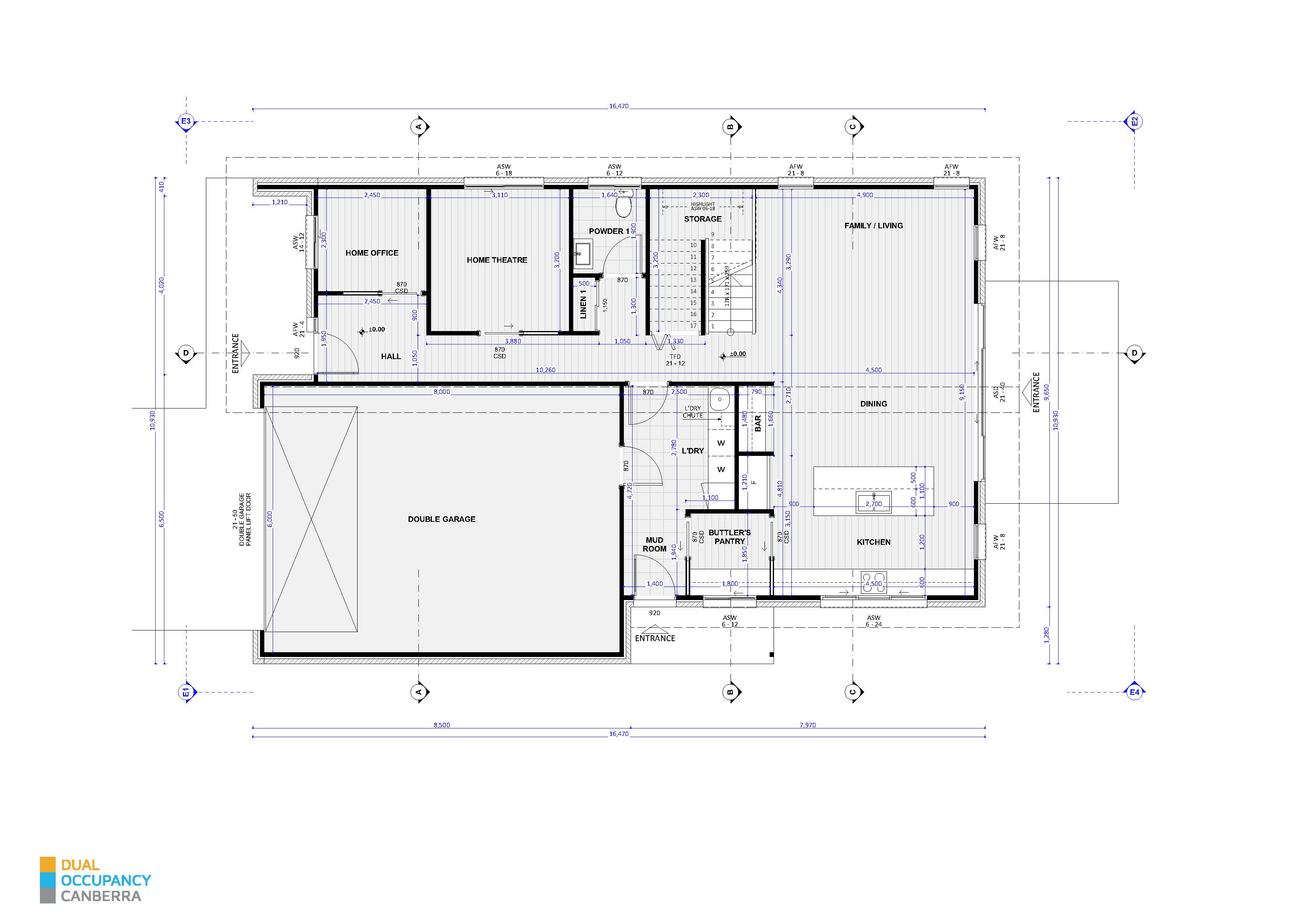
Design DO-1402 is a thoughtfully crafted two-storey residential floor plan that seamlessly blends functionality with modern aesthetics. This design caters to contemporary living needs, ensuring comfort, privacy, and efficient use of space across both levels.
Upon entering the home, one is welcomed by a spacious foyer that transitions smoothly into the main hallway. This central corridor acts as the backbone of the house, providing access to various rooms while maintaining an open and airy ambiance. To the left of the entrance lies Bedroom 4 (Bed 4), strategically positioned to serve as either a guest room or an additional family bedroom. Adjacent to Bed 4 is Bedroom 3 (Bed 3), which shares similar dimensions and offers ample space for furnishings. Moving further along the hallway, one encounters Bedroom 2 (Bed 2) on the right side. This room is designed with versatility in mind, suitable for children or as a home office. Across from Bed 2 is a well-appointed bathroom equipped with modern fixtures to cater to the occupants of these bedrooms.
The heart of Design DO-1402 lies in its communal spaces. The Multipurpose Room (MPR) serves as an adaptable area that can be used for various activities such as entertainment, relaxation, or even fitness routines. Its proximity to other key areas ensures it remains an integral part of daily life within this home.
Adjacent to the MPR is the Laundry Room (LDRY), thoughtfully placed for convenience without compromising on accessibility or aesthetics. The nearby Powder Room adds another layer of practicality by offering additional facilities without encroaching on private spaces. As one ascends to the upper floor, the Master Bedroom Suite stands out, epitomizing luxury combined with privacy. It features generous sleeping quarters and includes a Walk-In Robe (WIR) leading into an Ensuite Bathroom with luxurious fittings, ensuring the ultimate comfort residents deserve after a long day. In addition, there are two more bedrooms located on the opposite side of the master suite: Bed 1 and Bed 5. Both are spacious enough to accommodate the needs of growing families. These rooms share a common bathroom situated between them, making it an ideal setup for larger households where everyone gets their own personal space yet remains connected through shared amenities. The upper floor also boasts a balcony or terrace area, providing an outdoor space for relaxation and enjoying the surrounding views. This feature enhances the overall living experience by offering a seamless connection between indoor and outdoor environments.
Overall, Design DO-1402 represents the perfect blend of style and substance, catering to the diverse needs of modern families. Its thoughtful layout ensures that every square foot is utilized efficiently, providing a harmonious balance between private and communal spaces. This design not only meets the practical requirements of daily living but also offers a welcoming and aesthetically pleasing environment that residents will be proud to call home.