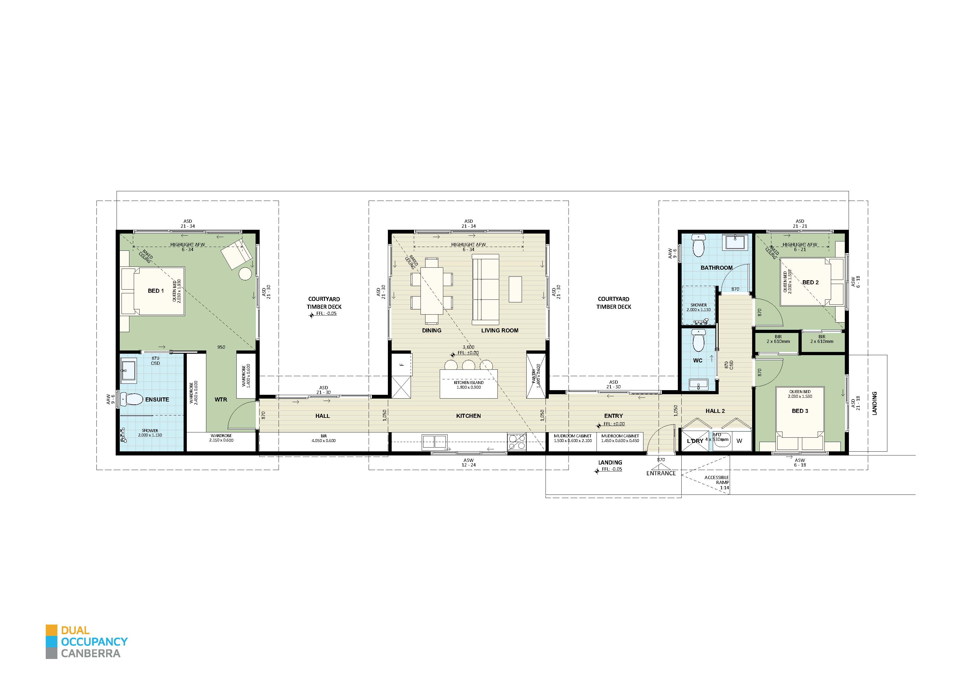
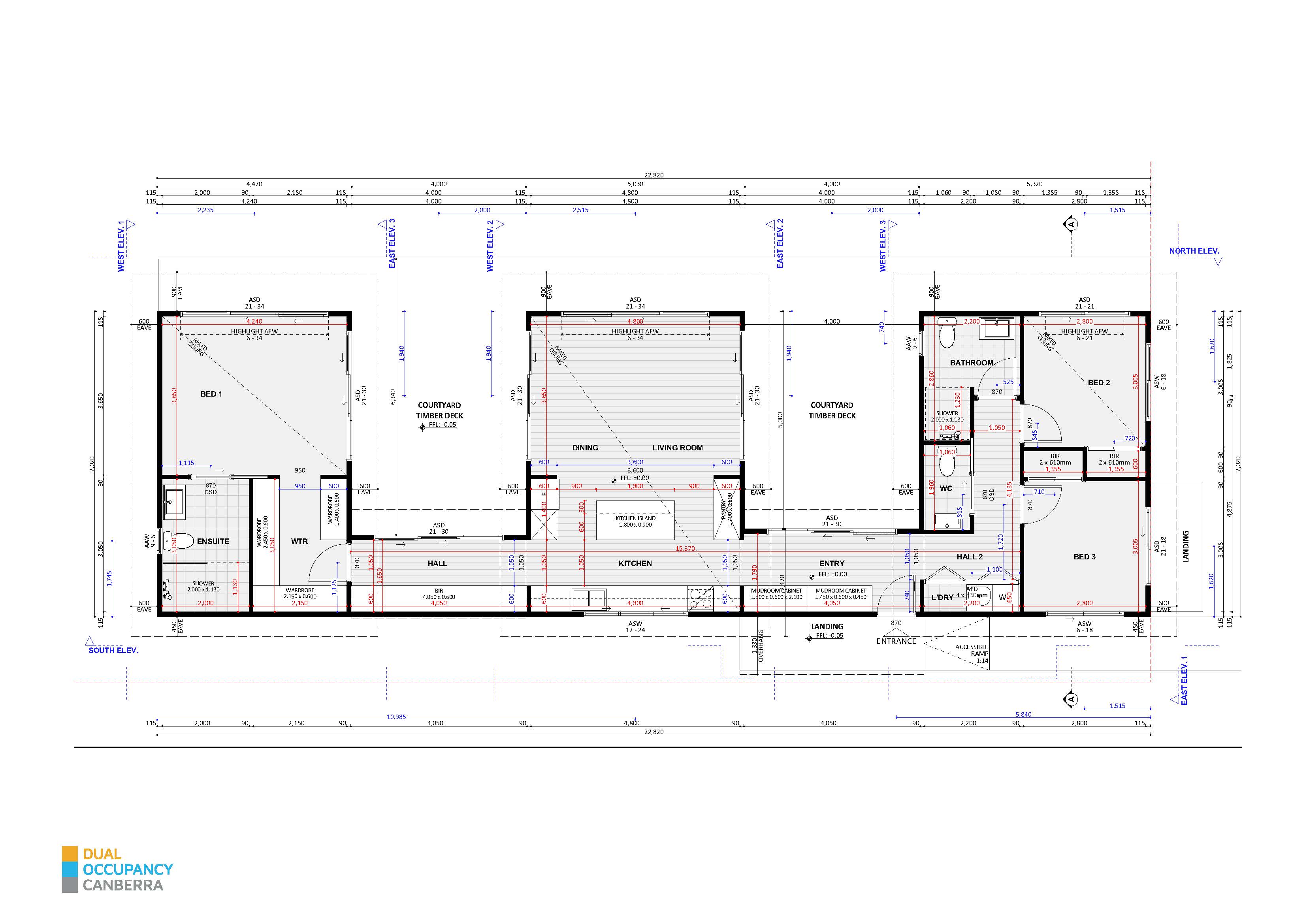
Design DO-301 tells a story of contemporary living woven seamlessly into the landscape—an architectural dance between open communal spaces and private retreats. The design unfolds as three distinct pavilions connected by light-filled corridors, forming a subtle “courtyard” feel that allows nature to flow in and around the home.
From the outside, the sleek mono-pitch roofs and clean vertical cladding immediately convey a modern aesthetic. These simple lines lend a sense of calm and order, hinting at the spaciousness within. Oversized windows and glass doors punctuate each pavilion, carefully placed to capture the best views, invite in natural light, and forge a strong connection with the outdoors.
Stepping through the main entrance, you are welcomed by a central living, dining, and kitchen zone—an airy gathering space where family and friends can easily mingle. This heart of the home is bright and open, anchored by a generous kitchen island that encourages conversation during meal prep or casual coffee breaks. Beyond the main living area, full-height sliders open to a sheltered courtyard deck, blurring the lines between inside and out.
On one side of the central pavilion, a tranquil wing provides private bedrooms and an en-suite, thoughtfully oriented for relaxation and seclusion. On the opposite side, a complementary wing houses additional sleeping quarters and a shared bathroom, ensuring everyone has their own peaceful corner. Both wings are linked to the living area via short, light-filled passages—each acting like a gallery wall or library nook, perfect for showcasing art, books, or personal mementos.
Sustainability and efficiency also play a key role in Design DO-301’s story. The simple, angular rooflines are designed to maximize water catchment potential, while high-level windows usher in cross-breezes to keep the interior comfortable without relying solely on mechanical systems. Strategically placed insulation and double-glazed windows further enhance the home’s energy performance, ensuring year-round comfort.
Outdoor living is elevated by landscaped garden beds and carefully placed seating nooks, offering a sense of serenity and a natural extension of the home’s social spaces. Whether enjoying a morning coffee on the deck or hosting a summer barbecue in the courtyard, residents and guests can savor the fresh air and greenery from every angle.
Ultimately, Design DO-301 is an ode to relaxed modern living—an inviting, flexible floor plan that balances open, shared areas with private, restful hideaways. It’s a home where simplicity and style coexist, connecting the inhabitants to each other and to the beauty of the surrounding environment.
Customised Planning Approvals Features for DO-301