It’s our commitment to build you a world-class and high-quality residential project with a fixed-price agreement.
Project values fall into three distinct categories:
Build value – This is the total value to fully complete the build with all premium inclusions and means that the property is ready to move into with nothing left to spend.
Planning fees and charges – This includes payment of all home warranty and associated insurances, ACT Government fees, engineers, and related plans and certificates and building approvals.
Utility connections – These include connecting sewage, stormwater, electrical line +sub board, communications, site excavation and preparation for a standard block (80% of properties fall into this category).
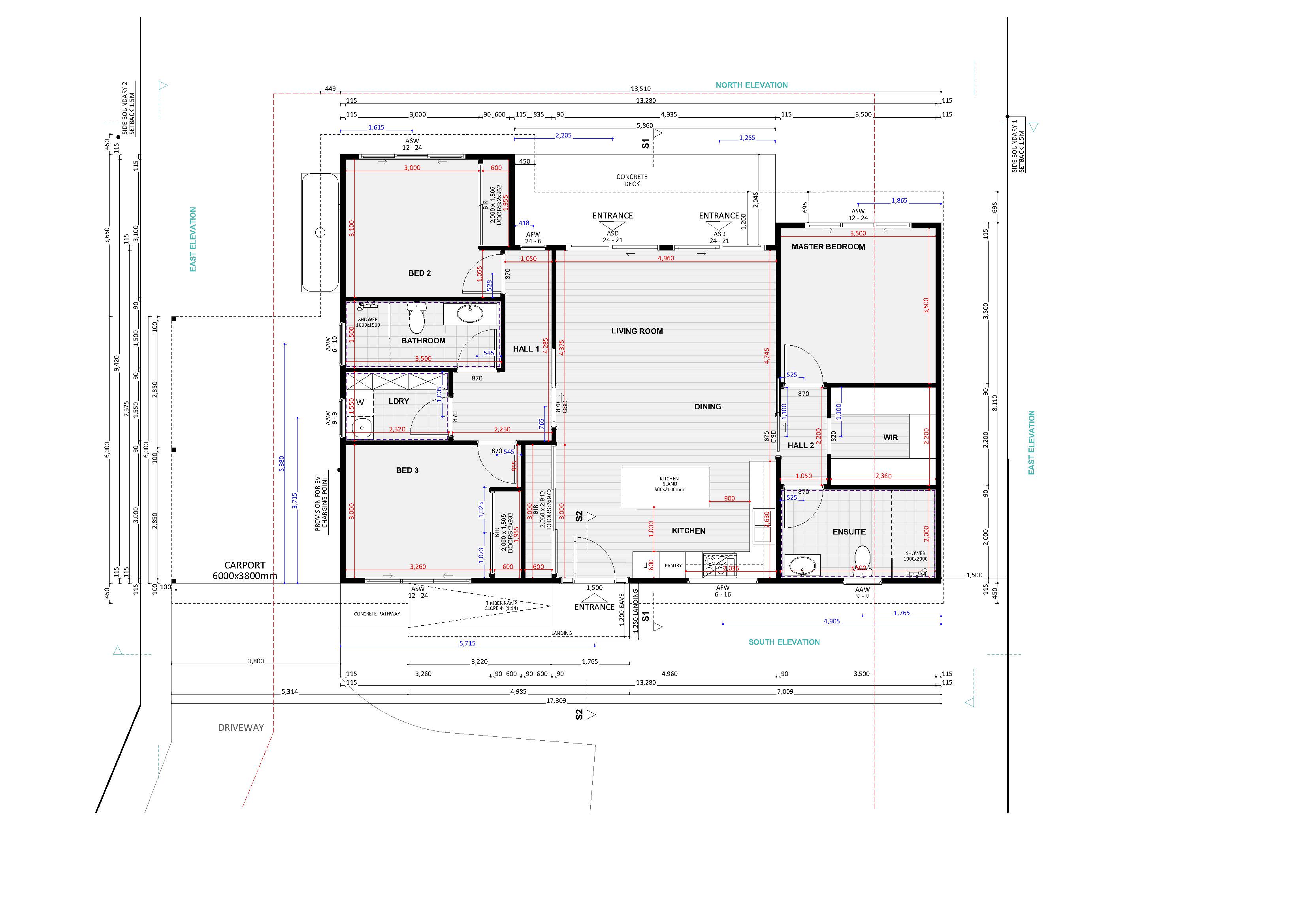
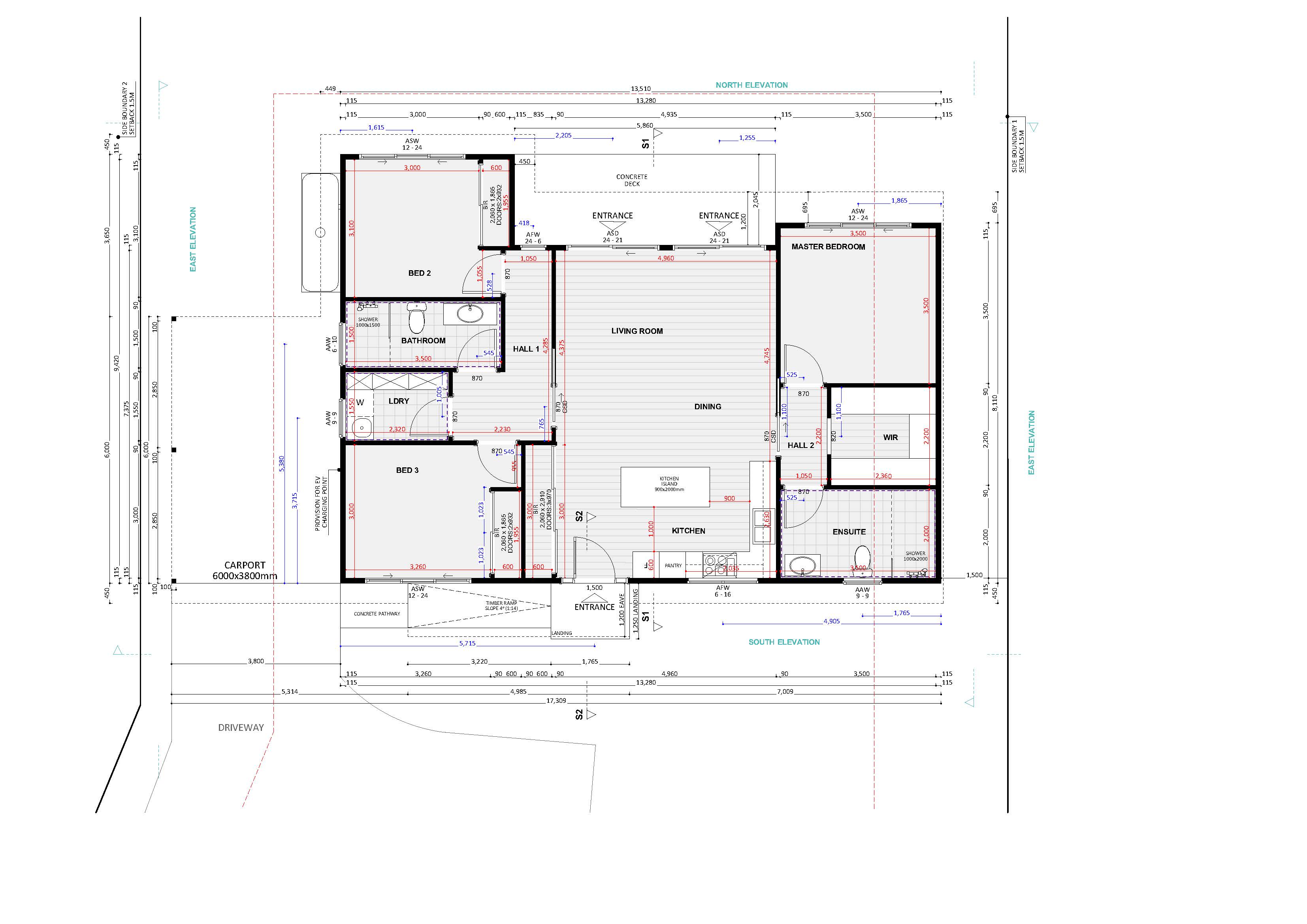
The pricing information for DO-311 is listed below:
Build value – $434,484.68 inclusive of GST
Total value = $495,123.52
Unlike secondary residences and extensions, Dual occupancy planning costs can vary drastically by suburb if the Crown lease needs any variation. These variations come from the ACT Planning legislation and are outside of our control. Utility connections can vary based on the needs of your block as, in order to get Unit Titled, separate utility connections are required. Throughout the process our team can advise you on the cost of these values once we have more information on your block and Crown lease.
The build cost encompasses the value of completing the build, including all inclusions. The total value will be the sum of the build cost, planning fees and utility charges. Before you make any commitment to engage with us, we will provide you with a customised, detailed, fixed-price agreement. This agreement will outline all costs and inclusions, supported by our HIA agreement and protected by our foundational guarantees.
To read more about Dual Occupancy Pricing, click here.
Please complete our Free Planning Assessment Report form to establish if we can build DO-311.
Or call 1300 979 658 (7 days) or fill in the enquiry form (to the left). Find out if we can build this on your property by booking your free Planning Assessment Report today!