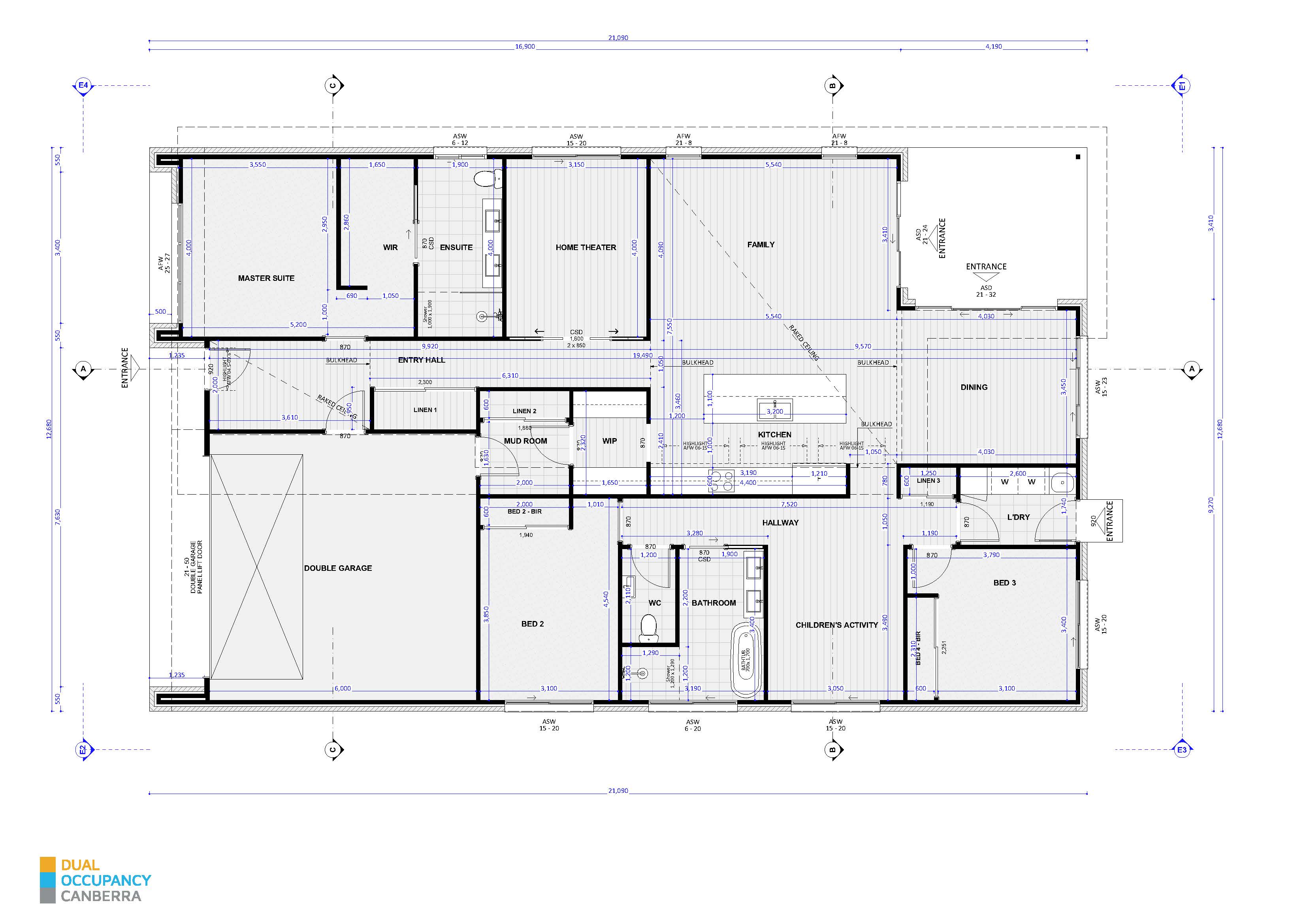
The Design DO-1303 presents a modern, thoughtfully planned family home that seamlessly blends functionality, comfort, and style. With an elegant single-storey layout and striking contemporary façade, the home features a practical and well-zoned floor plan ideal for growing families. The design also emphasizes open living spaces, privacy in key areas, and a strong connection to the outdoors.
At the heart of the home lies the open-plan living area, which integrates the kitchen, family room, and dining space. This central zone is designed for easy entertaining and everyday living, with a large island bench, walk-in pantry (WIP), and direct access to the alfresco area. The family room opens up to a home theatre, creating a versatile space for relaxation and entertainment.
The Master Suite is located at the front of the home for added privacy, complete with a spacious walk-in robe (WIR) and a luxurious ensuite featuring a double vanity and large shower. Positioned well away from the other bedrooms, it offers a peaceful retreat for parents. Bedrooms 2 and 3 are located in a separate wing toward the rear of the house, with their own bathroom and water closet, making it ideal for children or guests. A fourth bedroom or multi-purpose room (labeled BED 2/BIR) sits near the front of the home and can be used as a guest room, study, or even a nursery. The inclusion of a dedicated children’s activity area outside the bedrooms further emphasizes the family-friendly focus of this design. This flexible space can serve as a play area, homework zone, or quiet retreat for younger members of the family.
Additional features of the Design DO-1303 include a mudroom conveniently located near the garage, a spacious laundry with external access, and generous storage options including two linen closets and built-in robes throughout. The double garage provides ample room for two vehicles and includes a storage recess for bikes or tools. From the exterior, the Design DO-1303 boasts a modern aesthetic with clean lines, a skillion roof, and a mix of light and dark finishes. Two different renders highlight versatile styling options: one showcases a light brick exterior with warm timber accents, and the other offers a darker, moodier façade with sleek contrast finishes.
Overall, the Design DO-1303 is a stylish, highly functional home designed to cater to the dynamic needs of modern families. With its smart zoning, flexible living areas, and thoughtful detailing, it strikes a perfect balance between sophistication and everyday practicality.